|
|
概述 S▢-M 型系列三相油浸式电力变压器是国家科技新产品,在新型电力产品结构设计的基础上进行开发的。设计的主导思想是满足产品的可靠性,提高产品的性能,设计中根据新型电力产品的实际情况,重新调整了一些损耗系数和结构,使损耗设计值更符合实测值;同时进行了优化设计,合理确定铜铁比例,使材料成本最低,结构也更合理。 型号含义
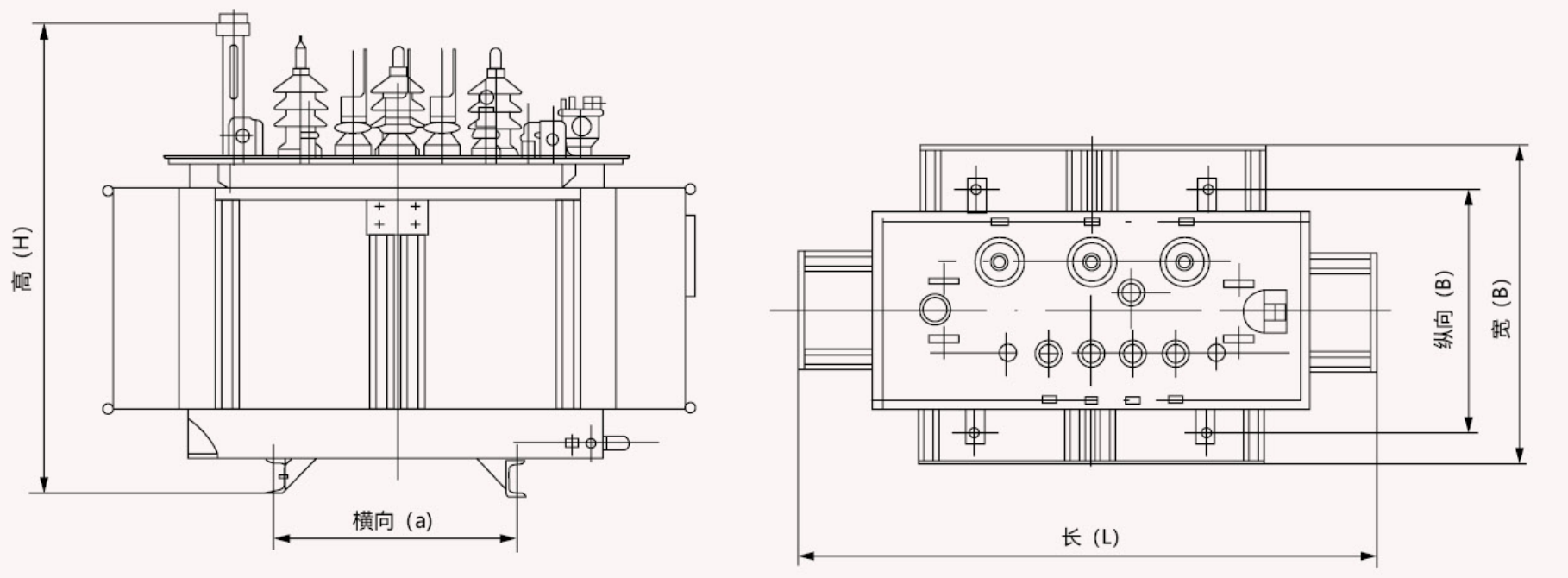
铁芯/绕组和器身 采用高导磁/低损耗的优质高性能硅钢片,降低了空载损耗。 结构 630kVA及以上产品低压采用新型螺旋式。器身装配总结了新型电力变压器成熟经验,器身装配后成为一个牢固的整体,保证产品满足电气性能和突发短路时机械强度要求。本系列产品为全密封结构,保证了变压器油与外界空气隔绝,防止了油的老化,提高了变压器的可靠性。 油箱采用波纹油箱:在箱壁上下各开一长孔,以促进油在波纹片里的循环。这种油箱工艺简单,机械强度高,油的流动性及散热能力提高,焊接效果好,不易渗漏。 S11-M油浸式电力变压器 外形及安装尺寸
技术参数
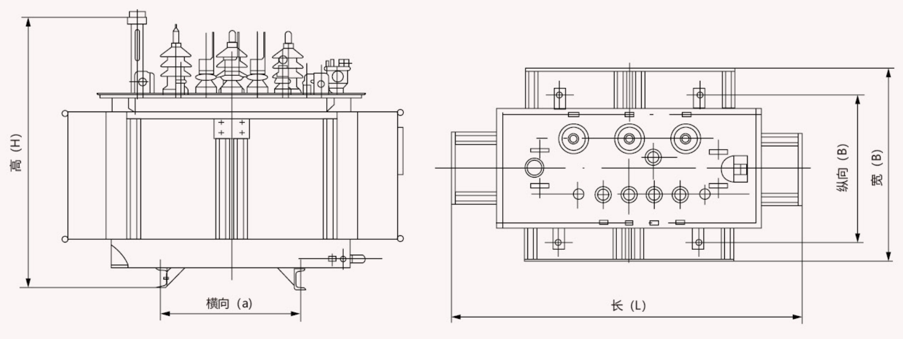
S13-M油浸式电力变压器 外形及安装尺寸
技术参数
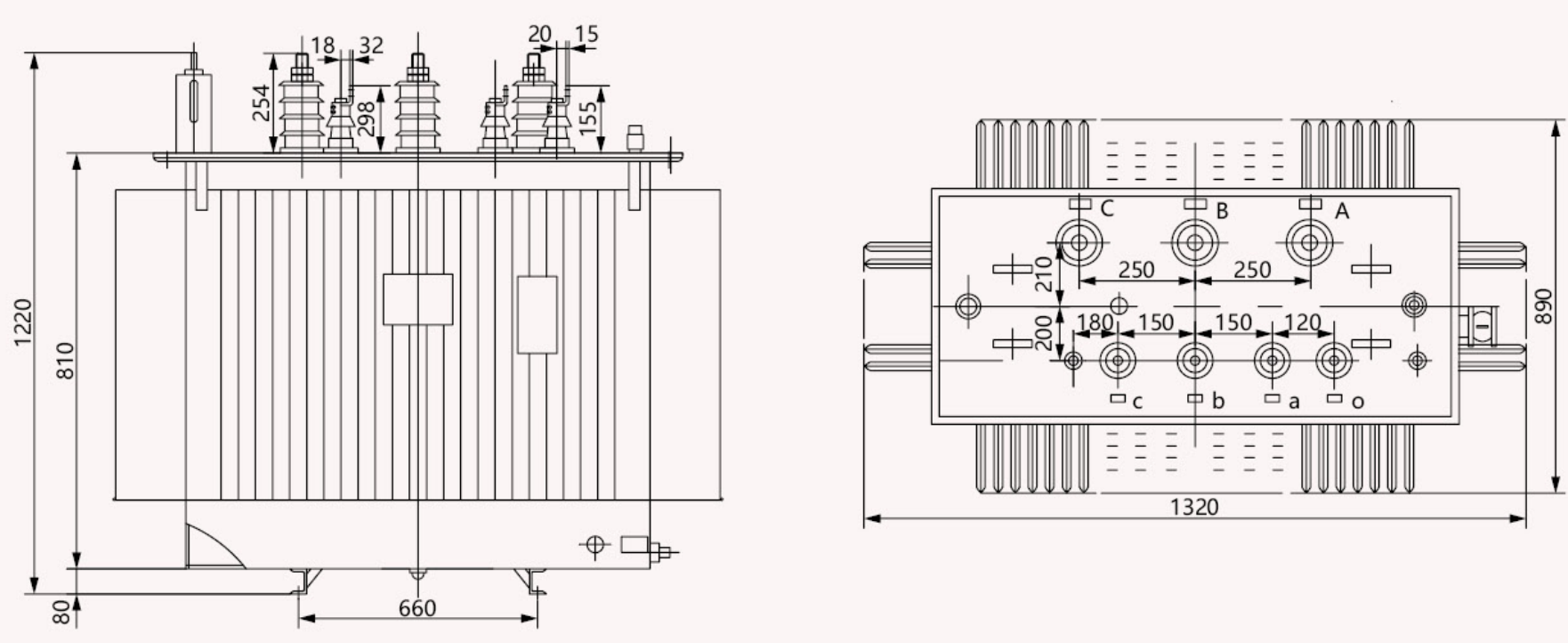
S20-M油浸式电力变压器 外形及安装尺寸
技术参数
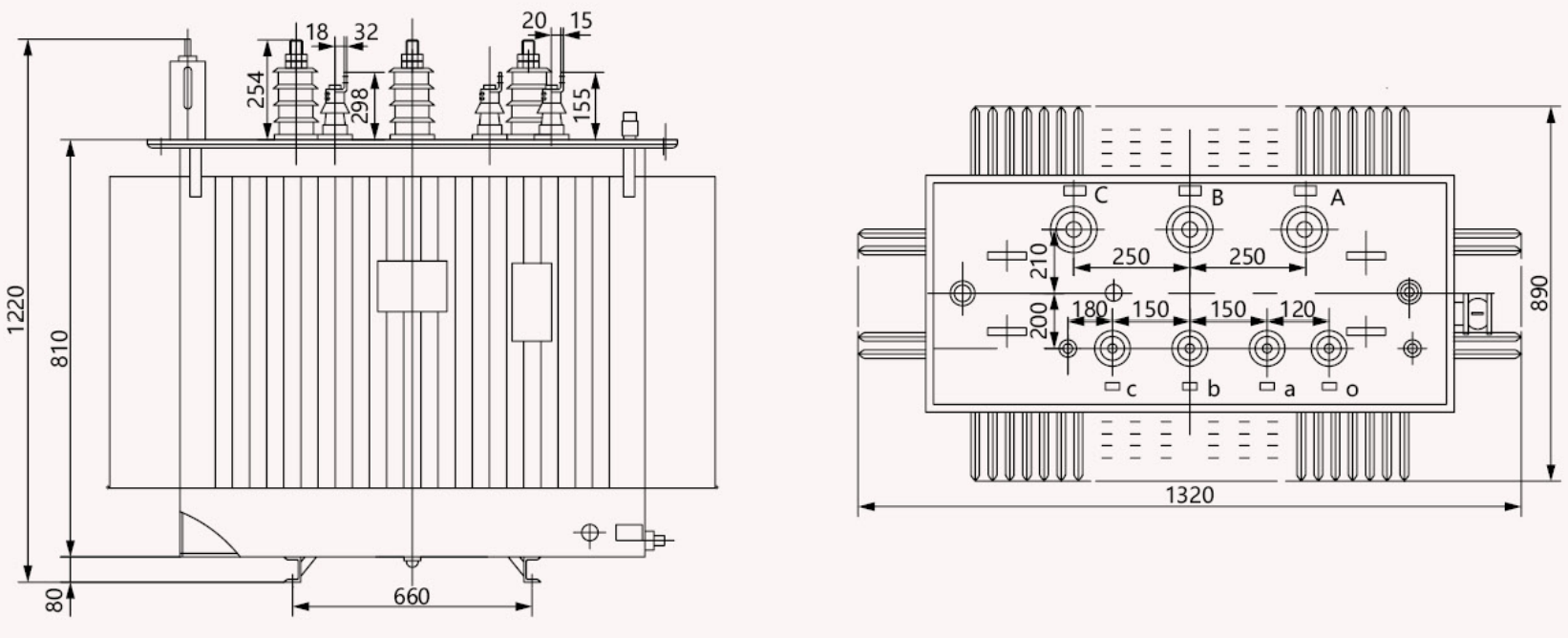
S22-M油浸式电力变压器 外形及安装尺寸
技术参数
|
保定天威电气成套设备有限公司
BAODING TIANWEI ELECTRICAL COMPLETE EQUIPMENT CO., LTD.

联系电话:0312-2022666

公司传真:0312-2022666

联系邮箱:twdqct@163.com

公司地址:河北省保定市清苑区富强北街382号
@2025 All RIGHTS RESERVED








